PICOTA IX

direccion Av. Costanera Esq. Santa Fe, Mar De Ajó

volver Volver al listado
left
right
left
right>

Estado

En construcción

Fecha de entrega

Diciembre 2027

Acerca del emprendimiento

PICOTA IX – MAR DE AJÓ NORTE
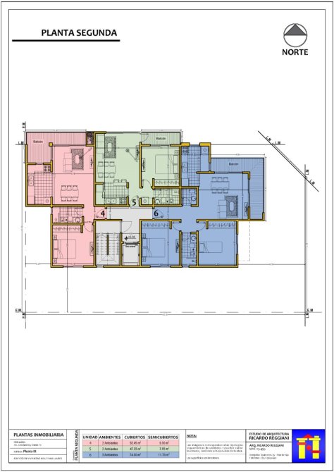
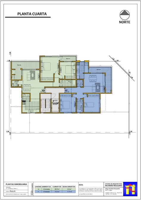
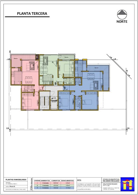
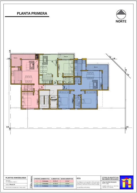
Departamentos de 2 y 3 ambientes

12 unidades sobre Av. Costanera y Santa Fe. VISTA Y ACCESO DIRECTO AL MAR
¡Todas cuentan con Balcón!

4 pisos con 3 departamentos por piso. Todas incluyen baulera en PB –
Las cocheras son opcionales.

• Estructura de h ormigón armado con losa tradicional..
• Ascensor de última generación.

Cada Unidad contará con:
- Aberturas H30 y Doble Vidriado Hermético.
- Barandas de balcones con vidrio de seguridad.
Estar-Comedor
- Pisos de porcelanato de primera calidad.
- Incluye Aire Acondicionado instalado y cortinas black out al frente.
Dormitorios
- Placares en melamina con interiores completos.
Cocina
- Equipada con Horno y Anafe eléctricos.
- Mesadas de granito.
- Grifería monocomando de primera marca.
- Bajo mesada y alacenas en melamina.
- Termotanque eléctrico.
Baños
- Artefactos sanitarios y grifería monocomando de primera línea.
- Incluye vanitory y espejo.

AVISO LEGAL: 1) Las descripciones arquitectónicas y funcionales, fotos, renders, memorias descriptivas, medidas del inmueble, precios, valores de expensas, impuestos y servicios y fechas de entrega de los emprendimientos son aproximados, meramente orientativos y no vinculantes. 2) Los datos fueron proporcionados por el propietario o por el desarrollador y pueden no estar actualizados a la hora de la visualización de este aviso por lo que pueden arrojar inexactitudes y discordancias respecto de los datos exactos, los cuales surgen de las facturas, títulos y planos legales del inmueble. 3) Recomendamos y sugerimos al usuario y/o al interesado realizar las verificaciones respectivas previamente a la realización de cualquier operación, requiriendo -a tal fin- por sí o a través de profesionales las copias necesarias de la documentación que estimen necesario conocer con exactitud.

 

Ubicación

Unidades

  • Anticipo y cuotas
  • Venta
  • Departamentos

direccion Av. Costanera Esq. Santa Fe, Mar De Ajó

Venta de departamento en Mar de Ajó norte

  • Tipo de propiedad Departamentos
  • ambientes 2 Ambientes
  • toilet 1 baño
  • cama 1 Dormitorio
  • Disposicion Disposicion Frente
  • Anticipo y cuotas
  • Venta
  • Departamentos

direccion Av. Costanera Esq. Santa Fe, Mar De Ajó

Venta de departamento en Mar de Ajó Norte

  • Tipo de propiedad Departamentos
  • ambientes 3 Ambientes
  • toilet 2 baños
  • cama 2 Dormitorios
  • Disposicion Disposicion Frente

Servicio brindado por

buscadorprop

Todos los derechos registrados:

grupotodo
whatsapp Whatsapp email Contactar telefono Llamar
Chatea con nosotros whatsapp